СОФИЯ
VNTA
HOUSE
10 / 01 / 2022
Сградата е ситуирана в с. Драговищица, гр. Костинброд, а имотът е в края на селото, като самият той е в по-високата му част, разкривайки панорамна гледка към Стара планина.
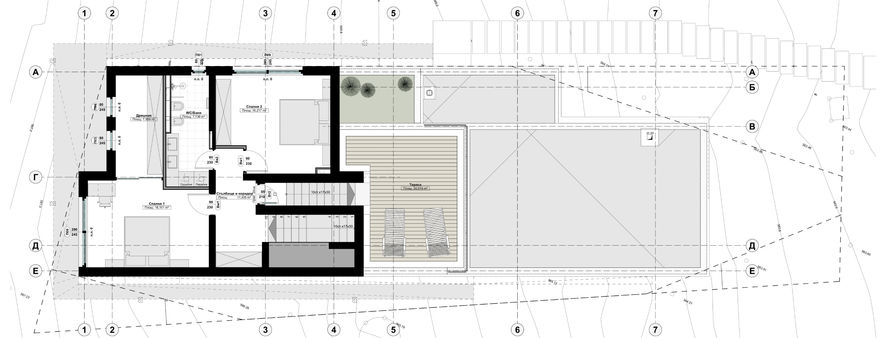
Дългият имот и спецификите на терена формират идеята за стъпаловидна функция, като помещенията следват денивелацията, а покривър на къщата е панорамна тераса, която компенсира надлъжния и тесен двор, оставащ около къщата.
Дневната зона е на ниво партер, а нощната зона е на половин ниво над нея.
Формата се дефинира от двата основни материала - дървесина и класическа мазилка, които изразяват обемите и категорично свързват сградата с мястото й.
Сградата разполага с две спални, сервизни и обслужващи помещения, дрешник, напълно оборудвана дневна зона, както и две паркоместа за гостите.




